Les Réalisations de Biomeo Environnement
Dossier de régularisation de constructions existantes
Missions : Assistance à maitre d’ouvrage, volet paysager et généraliste de l’étude d’impact, permis d’aménager.
Présentation : Le Speedkart propose une activité de karting sur un vaste circuit destiné aux adultes et aux enfants. Des activités de mimi moto et quads sont aussi disponibles.
Phase : Livré.
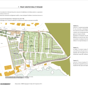
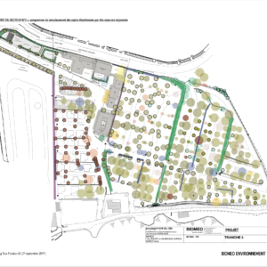
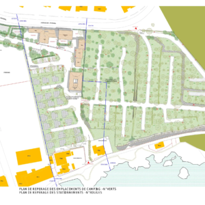
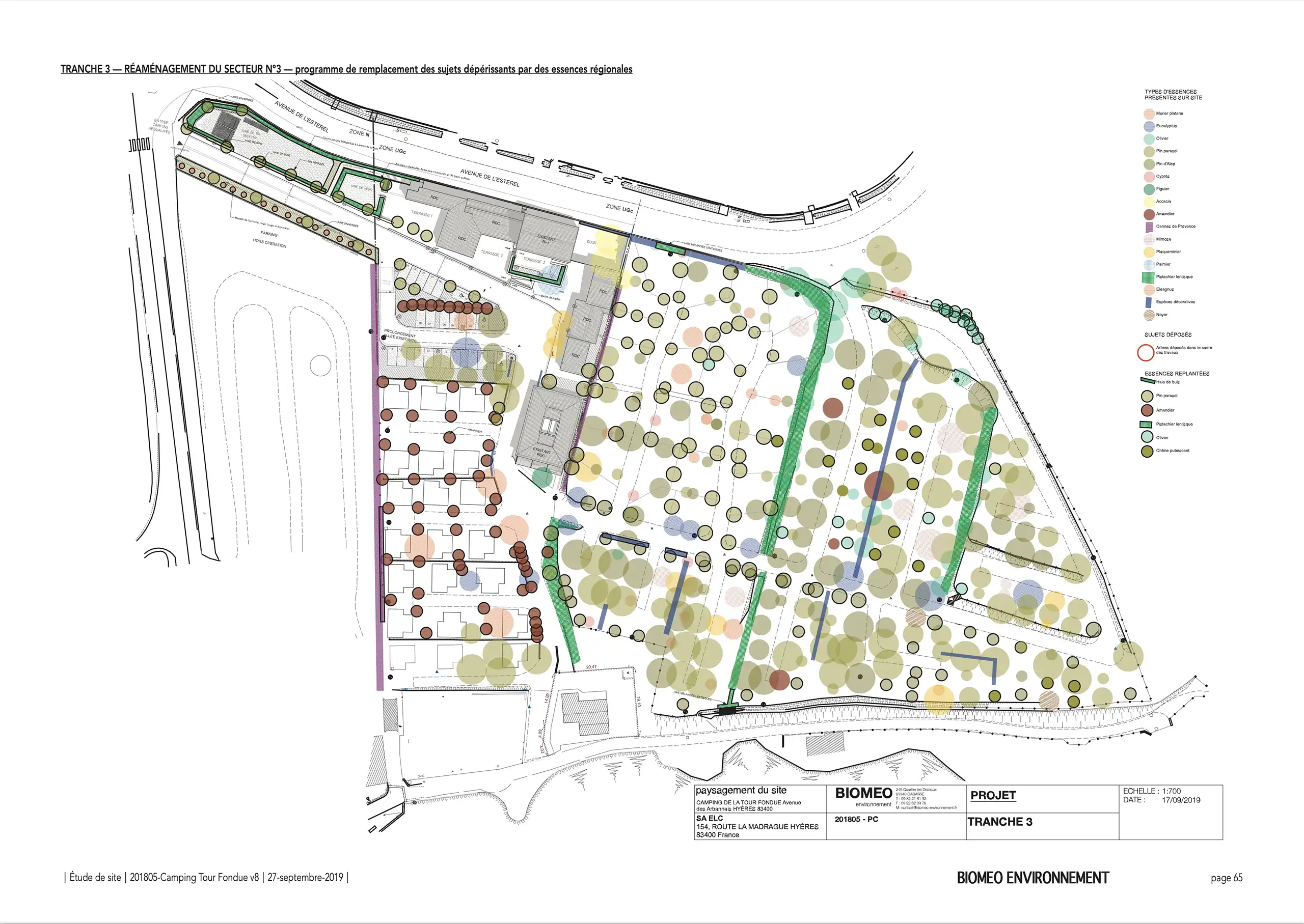
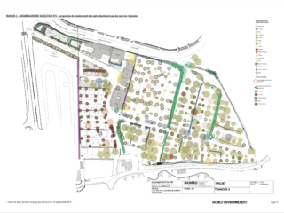
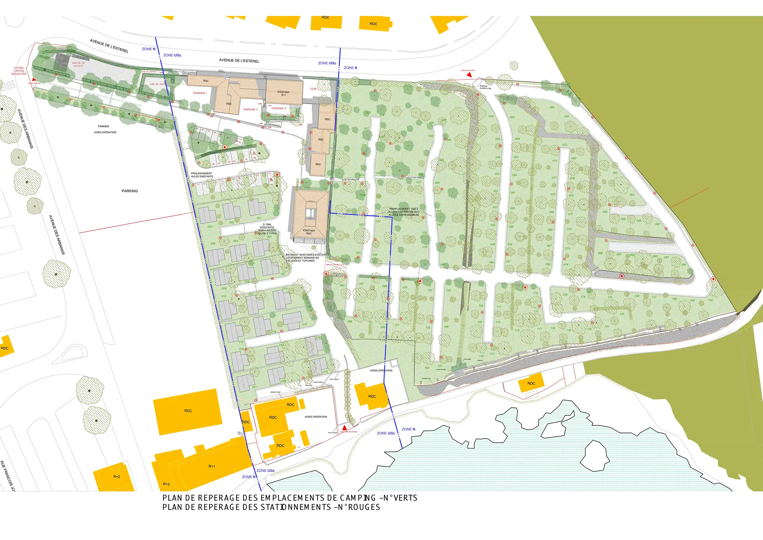
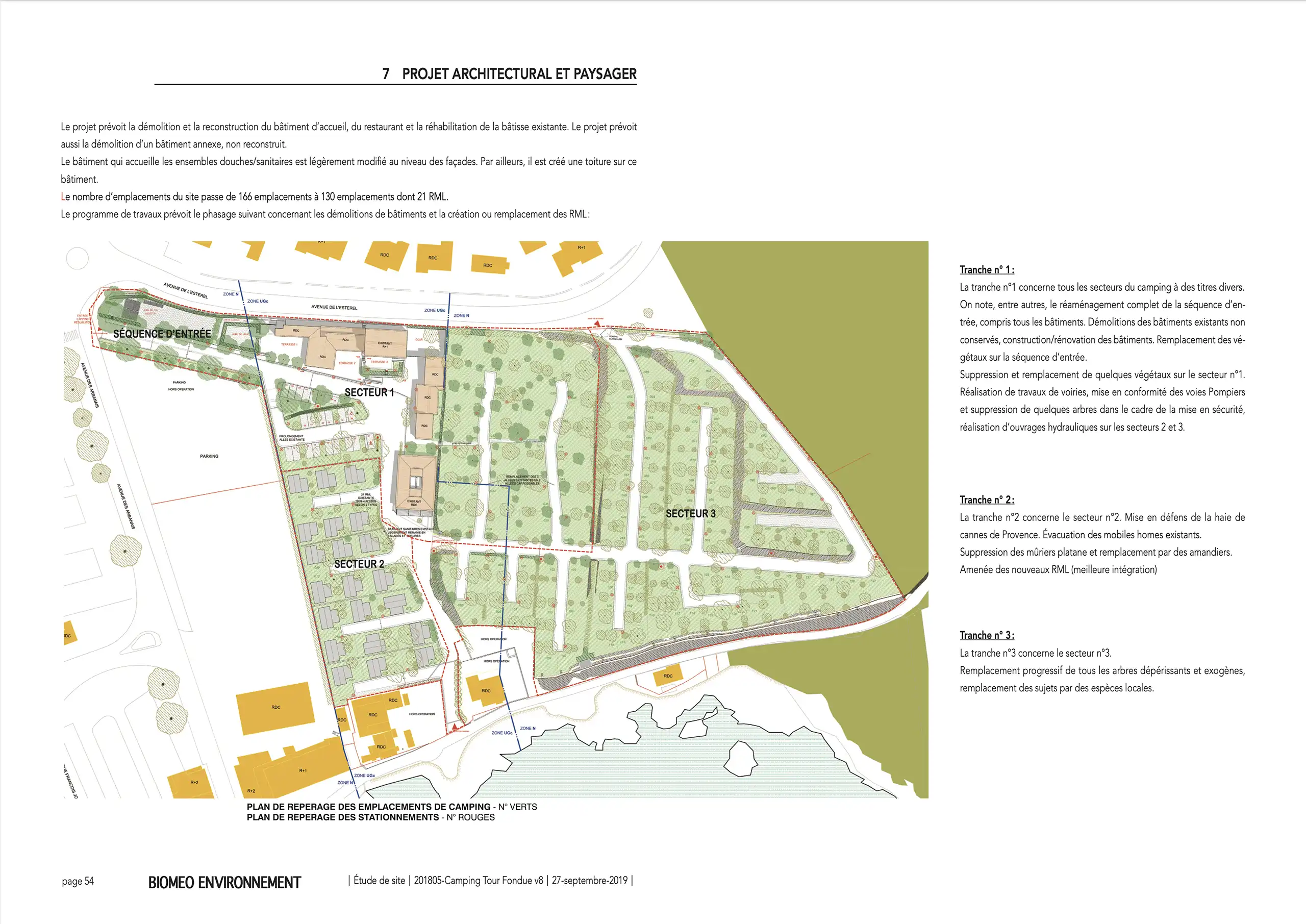
Dossier de régularisation d’un camping existant en site classé et périmètre de monument historique.
Missions : Assistance à maitre d’ouvrage, volet paysager de l’étude d’incidence démontrant l’absence d’impacts de l’activité de camping sur les paysages protégés du secteur.
Phase : Livré.
Expertises paysagères
Projet : expertises paysagères sur 12 sites situés situés en secteurs protégés (sites inscrits / classés / périmètres de M.H.) ,dans le cadre de l’entretien pluriannuel des voies ferrées et de leurs abords.
Missions : Expertises paysagères pour chaque site identifié, sur les emprises de travaux et les emprises dévolues aux installations de chantier. Les rapports visent à déterminer les incidences des travaux prévus par SNCF Réseau, à trouver des solutions moins perceptibles et à formaliser le rapport d’instruction du dossier (autorisation préalable pour des installations de chantier et site inscrit/classé et/ou , autorisation préalable pour des installations de travaux en site inscrit/classé / abords de monuments historiques).
Phase : Livré.
Volet paysager d’une étude d’impact sur l’environnement
Missions : Expertise paysagère. Établissement de l’état initial de l’environnement, établissement conjoint du projet, propositions de mesures (Séquence ERC), schémas, dessins. Établissement des impacts bruts et après mesures. Impacts cumulés avec les autres projets.
Phase : Livré.
Volet paysager d’une étude d’impact sur l’environnement
Missions : Expertise paysagère. Établissement de l’état initial de l’environnement, établissement conjoint du projet, propositions de mesures (Séquence ERC), schémas, dessins. Établissement des impacts bruts et après mesures. Impacts cumulés avec les autres projets
Phase : Livré.
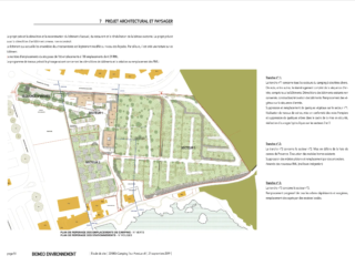
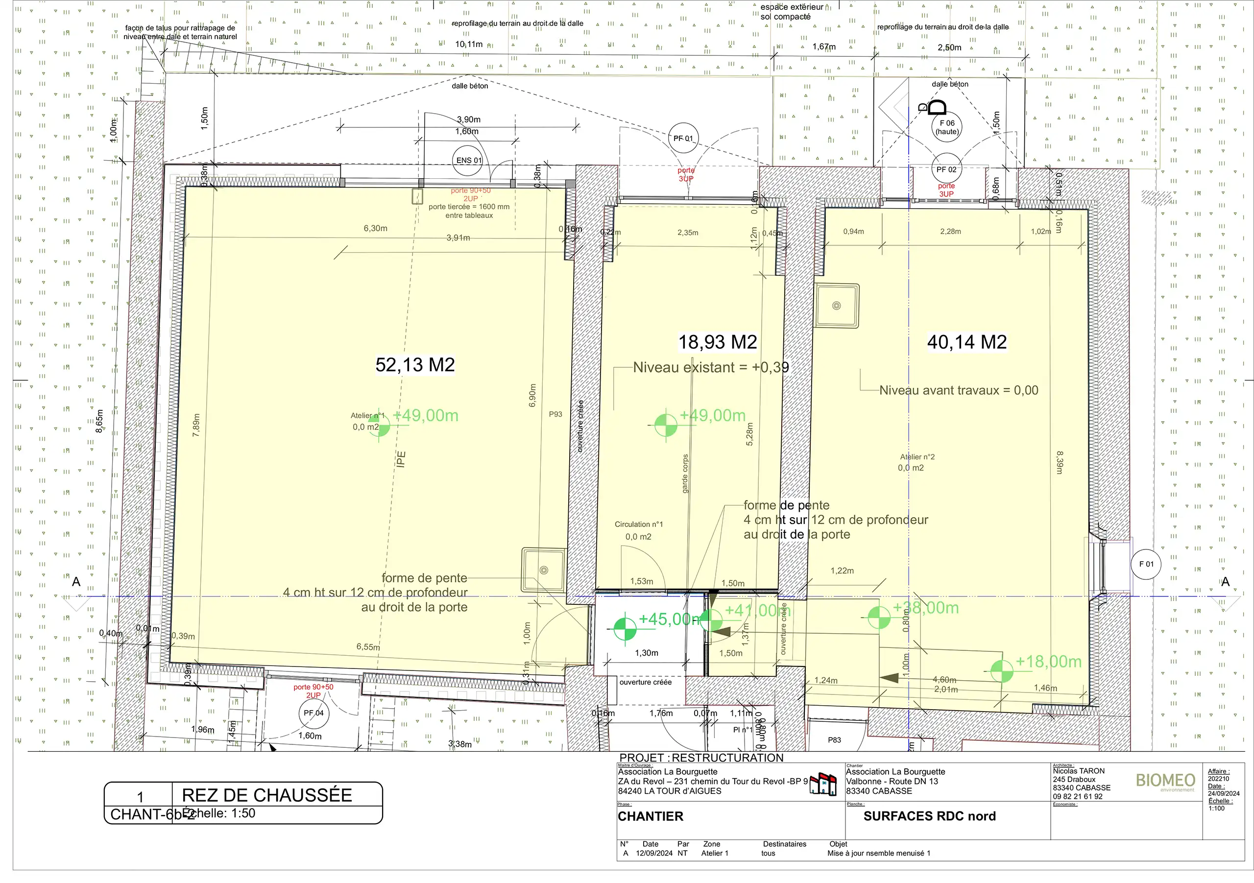
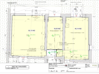
Mission d’architecte complète
Projet : Réhabilitation et reconstruction partielle d’un corps de bâti ancien (130 m2). Création d’ateliers pour un FAM.
Missions : Diagnostic des existants. Mission d’architecte complète.
Phase : Livré.
Création de bâtiments sur deux niveaux, bureaux, commerces et logement de fonction (2300 m²)
Missions : Mission d’architecte complète.
Phase : Permis d’aménager en cours.
Création d’ombrières sur parking d’entreprise, en périmètre de monument historique.
Missions : Expertise paysagère adossée au dossier de Permis de construire.
Phase : Permis d’aménager en cours.
Volet paysager d’une étude d’impact sur l’environnement.
Missions : Expertise paysagère. Établissement de l’état initial de l’environnement, établissement conjoint du projet, propositions de mesures (Séquence ERC), schémas, dessins. Établissement des impacts bruts et après mesures. Impacts cumulés avec les autres projets.
Phase : Livré.
Extension du domaine viticole sur 1 ha.
Projet : Extension du domaine viticole sur 1 ha. Situé en périmètre de site inscrit.
Missions : Expertise paysagère adossée à une demande de Cas par cas visant à l’exemption d’étude d’impact.
Phase : Livré.
Conduite de procédure de déclaration de projet
Projet : Conduite de procédure de déclaration de projet et mise en compatibilité du PLU. Étude de discontinuité loi Montagne.
Missions : Expertise paysagère démontrant les faibles incidences de la transformation du bâtiment les Héliades en EHPAD, en association avec X.G. Conseil, urbaniste.
Phase : Livré.
Prédiagnostic paysager.
Missions : Expertise paysagère d’aide au choix d’implantation d’un projet de parc photovoltaïque permettant d’évaluer les incidences du projet, par zones et par points de vue.
Modélisation de la topographie sur 170 ha. Création des boisements, densité de plantation et hauteurs variables selon les secteurs. Modélisation sommaire de l’emprise volumique du parc.
Phase : Livré.







































